Woonoppervlakte
Circa 86 m²
Perceeloppervlakte
Circa 154 m²
Bouwjaar
Gebouwd in 1932
Aantal kamers
4 kamers (2 slaapkamers)

Waterstraat 112

4702 TX, Roosendaal (Noord-Brabant)

Ben jij op zoek naar een verrassend leuke woning in het hart van Roosendaal? Welkom aan de Waterstraat 112! Deze charmante eengezinswoning is gelegen in een fijne wijk, met volop voorzieningen in de buurt. Je profiteert hier van een ideale ligging, met winkels, scholen en het stadscentrum op korte afstand, én een rustige straat waar je je helemaal thuis zult voelen. Wat deze woning écht bijzonder maakt? Denk aan een strak afgewerkte woonkamer, een gesloten keuken met schuifdeur, twee sfeervolle slaapkamers met mooie houten balken, én een verzorgde tuin met grote garage. En alsof dat nog niet genoeg is, ligt de woning ook nog eens op een toplocatie én is voorzien van maar liefst 10 zonnepanelen, klaar voor een duurzame toekomst! Klinkt goed? Plan snel die bezichtiging in en kom het zelf ervaren!

Entree
Na het parkeren aan de straat kom je binnen in de hal van deze sfeervolle woning. Hier valt meteen het karakter op: een moderne trap leidt naar boven, terwijl je via een stijlvolle glazen deur alvast een glimp opvangt van de woon-/eetkamer. Een warm welkom!

Wonen & Koken
De woonkamer is strak afgewerkt en voelt direct comfortabel. Dankzij het grote raam aan de voorzijde valt er volop daglicht naar binnen, perfect voor je favoriete zithoek met tv. Aan de achterzijde is er ruimte voor een royale eettafel, waar je heerlijk dineert met vrienden of familie. De lichtinval van beide kanten zorgt voor een open, uitnodigende sfeer. De keuken is afgesloten met een mooie schuifdeur, ideaal als je even ongestoord wilt koken. Deze praktische keuken is voorzien van een inductiekookplaat, ingebouwde oven, afzuigkap en vaatwasser. De witte kastjes geven het geheel een frisse, moderne uitstraling. Vanuit de keuken heb je direct toegang tot de tuin, en via een tweede schuifdeur bereik je de gang naar het separate toilet en de badkamer.

Slapen, Dromen & Douchen
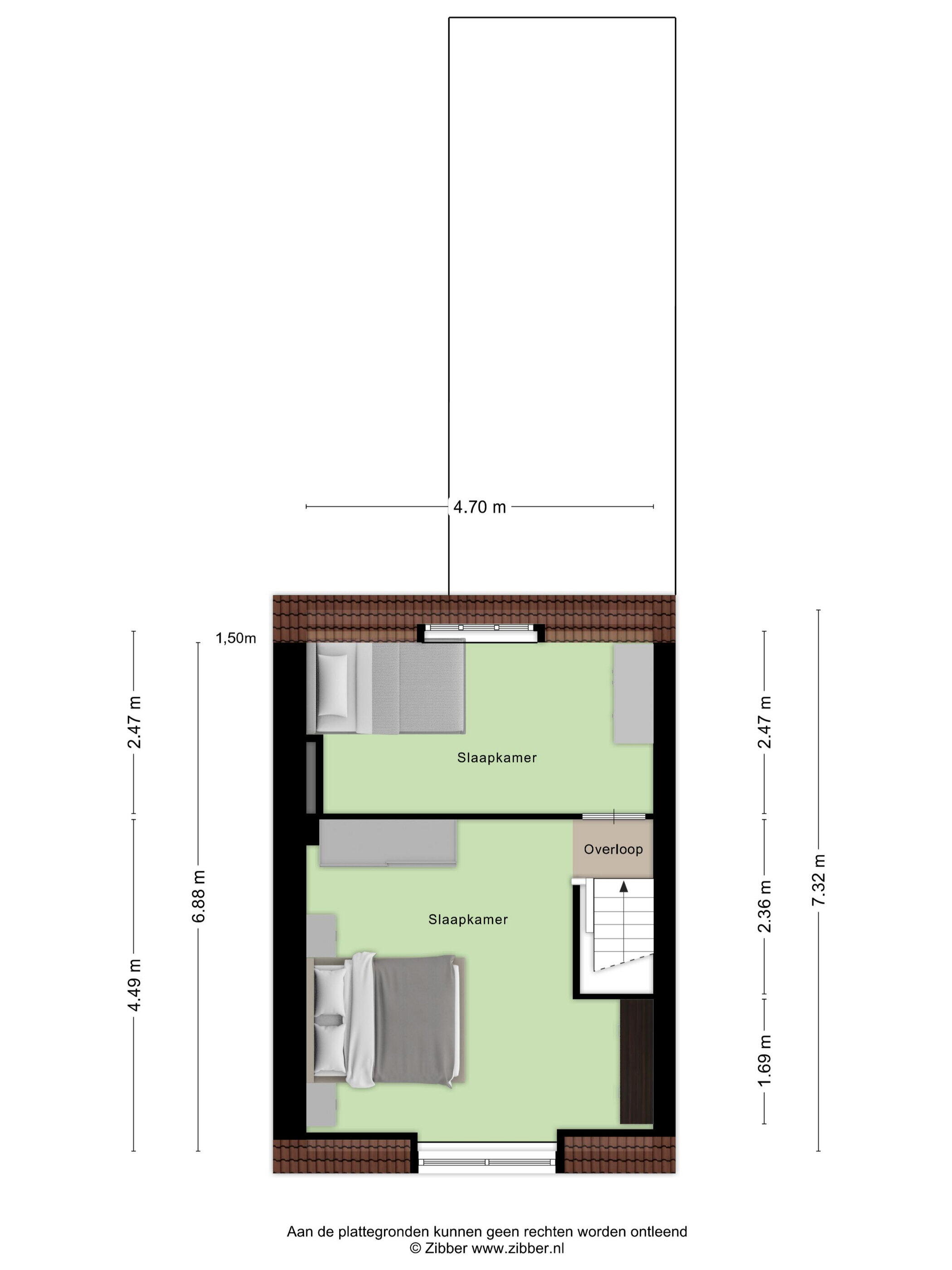
Op de eerste verdieping bevinden zich twee slaapkamers, beide netjes wit afgewerkt en voorzien van ramen die zorgen voor een fijne lichtinval. De grote slaapkamer biedt plek voor een comfortabel bed én kasten, terwijl een mooie houten balk op het plafond zorgt voor extra sfeer. De tweede kamer is iets kleiner en perfect als kinderkamer, werkkamer of inloopkast, ook hier komt de houten balk prachtig terug. De badkamer is praktisch en stijlvol ingericht met een inloopdouche en wastafel, en het toilet is apart, recht tegenover de badkamer, lekker handig!

Tuinieren, Zonnen & Genieten
Wat een fijne buitenruimte! De onderhoudsvrije tuin is aangelegd met strakke tegels en biedt ruimte genoeg voor een loungeset of eettafel. Hier geniet je volop van de zon, rust en privacy. De grote garage achterin is perfect voor fietsen, opslag of… jouw toekomstige mancave! Bonus: hier zijn aansluitingen voor de wasmachine en droger, lekker uit het zicht.

Omgeving en Faciliteiten
De Waterstraat ligt in een geliefde wijk in Roosendaal, met alles wat je nodig hebt binnen handbereik. Supermarkten, basisscholen, sportverenigingen en het centrum van Roosendaal liggen allemaal op korte afstand. Of je nu met de auto of fiets reist, je zit hier overal dichtbij. De straat zelf is rustig en kindvriendelijk, een plek waar buren elkaar kennen, maar waar je ook je eigen rust vindt.

Toelichtingsclausule NEN2580:
De Meetinstructie is gebaseerd op de NEN2580. De Meetinstructie is bedoeld om een meer eenduidige manier van meten toe te passen voor het geven van een indicatie van de gebruiksoppervlakte. De Meetinstructie sluit verschillen in meetuitkomsten niet volledig uit, door bijvoorbeeld interpretatieverschillen, afrondingen of beperkingen bij het uitvoeren van de meting.

Plattegronden

Overdracht

Vraagprijs
€ 295.000 k.k.
Status
Verkocht
Aanvaarding
In overleg

Bouw

Object type
Eengezinswoning, 2 onder 1 kapwoning
Soort bouw
Bestaande bouw
Bouwjaar
1932
Soort dak
Mansarde dak bedekt met pannen

Oppervlakte en inhoud

Woonoppervlakte
86 m²
Perceeloppervlakte
154 m²
Inhoud
305 m³
Externe bergruimte
26 m²
Gebouwgeb. buitenruimte
1 m²

Indeling

Aantal kamers
4 kamers (2 slaapkamers)
Aantal badkamers
1 badkamer
Badkamervoorzieningen
Douche, wastafel
Aantal woonlagen
2 woonlagen
Voorzieningen
Zonnepanelen, natuurlijke ventilatie

Energie

Energielabel
E
Energielabel registratie
09-10-2025
Isolatie
Dubbel glas
Verwarming
Cv-ketel
Warm water
Cv-ketel
Cv ketel
Valliant gas gestookt uit 2018 (eigendom)

Buitenruimte

Ligging
In woonwijk
Tuin
Achtertuin

Garage

Soort garage
Vrijstaand steen
Capaciteit
1 auto

Parkeergelegenheid

Soort parkeergelegenheid
Openbaar parkeren

Energieverbruik in Roosendaal

Energielabel deze woning

Energielabel E

Publicatie energielabel: 09-10-2025

Stroomverbruik per jaar

3160 kWh

(Gemiddelde twee onder een kap in Roosendaal)

Gasverbruik per jaar

1510 m³

(Gemiddelde twee onder een kap in Roosendaal)

* Cijfers zijn afkomstig van het CBS en bedoeld als indicatie en kunnen verschillen voor deze woning

Indicatie hypotheeklasten

Eigen inleg:
Spaargeld / overwaarde

Rente:
Laagste 10-jaars rente

Laagste 10-jaars rente

2,88% - Centraal Beheer Groen... - NHG


3,1% - Argenta Groen Hypotheek... - 80%

Laagste 20-jaars rente

3,19% - Centraal Beheer Groen... - NHG


3,47% - Argenta Groen Hypothee... - 80%

Laagste 30-jaars rente

3,34% - Centraal Beheer Groen... - NHG


3,64% - Argenta Groen Hypothee... - 80%


Hypotheek:

Bruto maandlasten: € 0 p/m

Netto maandlasten: € 0 p/m

Hoe berekenen we dit?

Het rentepercentage is gebaseerd op de laagste 10 jaars vaste rente voor één hypotheekdeel. De vermelde rente (2.88% met NHG) is gecontroleerd op 11-12-2025. Deze berekening is gebaseerd op een annuïteitenhypotheek die volledig wordt afgelost, waarbij de maandlasten gedurende de gehele looptijd gelijk blijven. De werkelijke rente en netto maandlasten kunnen variëren, afhankelijk van uw persoonlijke situatie en de hypotheekverstrekker. Raadpleeg een financieel adviseur voor een nauwkeurige berekening en advies. Aan deze berekening kunnen geen rechten worden ontleend; het dient enkel als indicatie.

Documentatie

Zonnegrenzen bekijken

Op de kaart

Inwoners in Roosendaal

Cijfers voor postcodegebied 4702

Totaal aantal inwoners
13185 inwoners
Mannen
50%
Vrouwen
50%

Inwoners in Roosendaal

Cijfers voor postcodegebied 4702

tot 15 jaar
16%
15 tot 25 jaar
12%
25 tot 35 jaar
27%
45 tot 65 jaar
27%
65 en ouder
18%

Huishoudens in Roosendaal

Cijfers voor postcodegebied 4702

Eenpersoons zonder kinderen
41%
Meerpersoons zonder kinderen
26%
Huishoudens zonder kinderen
67%

Huishoudens in Roosendaal

Cijfers voor postcodegebied 4702

Huishoudens met één kind
9%
Huishoudens met meerdere kinderen
24%
Huishoudens met kinderen
33%

Woningen in Roosendaal

Cijfers voor postcodegebied 4702

Woningen voor 1945
29%
Woningen tussen 1945 en 1965
38%
Woningen tussen 1965 en 1975
10%
Woningen tussen 1975 en 1985
5%
Woningen tussen 1985 en 1995
2%

Woningen in Roosendaal

Cijfers voor postcodegebied 4702

Woningen tussen 1995 en 2005
8%
Woningen tussen 2005 en 2015
8%
Woningen na 2015
1%
Huurwoningen
50%
Koopwoningen
50%

Overige in Roosendaal

Cijfers voor postcodegebied 4702

Gemiddelde WOZ waarde
€ 183.000,-
Personen onder de 65 met uitkering
11%

Overige in Roosendaal

Cijfers voor postcodegebied 4702

Adressen per km²
2116
Stedelijkheid (schaal 1 op 5)
80%
Postcode kaart 4702 Gemeente kaart roosendaal

Indien u vragen heeft of u wilt een bezichtiging inplannen, dan kunt u gebruik maken van het formulier hiernaast. Er zal daarna op korte termijn contact met u worden opgenomen.

Vakidioten met een passie voor vastgoed

Bij C&R Makelaars draait alles om jou en je woning. Wij zijn een frisse, energieke generatie makelaars met een passie voor mensen en de woningmarkt.

We geloven in een persoonlijke aanpak zonder poespas: eerlijk, transparant en altijd met een flinke dosis enthousiasme. Het verkopen van je huis is een belangrijke stap, en daarom begeleiden we je op een manier die bij jou past, van begin tot eind.

Met onze diepgaande kennis van de lokale markt geven we je waardevol advies dat perfect aansluit bij jouw situatie én dat van potentiële kopers.

Daarnaast staat ons creatieve team van vastgoedmarketeers klaar om jouw woning in de schijnwerpers te zetten. Met slimme en doordachte strategieën zorgen we ervoor dat je huis opvalt en het maximale resultaat behaalt.

Jouw tevredenheid is ons einddoel. We zetten alles op alles om je verwachtingen te overtreffen. Nieuwsgierig naar ons team? Klik op de button hieronder en maak kennis met ons!

Vakidioten met een passie voor vastgoed
Reviews C&R Makelaars

Waterstraat 112, Roosendaal

€ 295.000 k.k. - Verkocht

Helaas, deze woning is verkocht!

Net te laat, deze woning is al verkocht. Laat een zoekopdracht bij ons achter zodat wij u direct kunnen helpen wanneer er nieuw aanbod beschikbaar komt.